HOME
About Us
About Us
Group Overview
Awards
Partners
Design Services
Resort Design
Open Space Design
Redesigning Countryside
Our Products
Construction Materials
Construction Parts
Installation
Product Advantages
Steel Structures
Projects
Showcase
Resort
Commercial Buildings
Public Buildings
Skyscrapers
Partnership
Our Services
Join Us
Contact Us
Become a supplier
News
Company Dynamics
Industry Information
Exhibition Activities
Design Services
Resort Design
Open Space Design
Redesigning Countryside
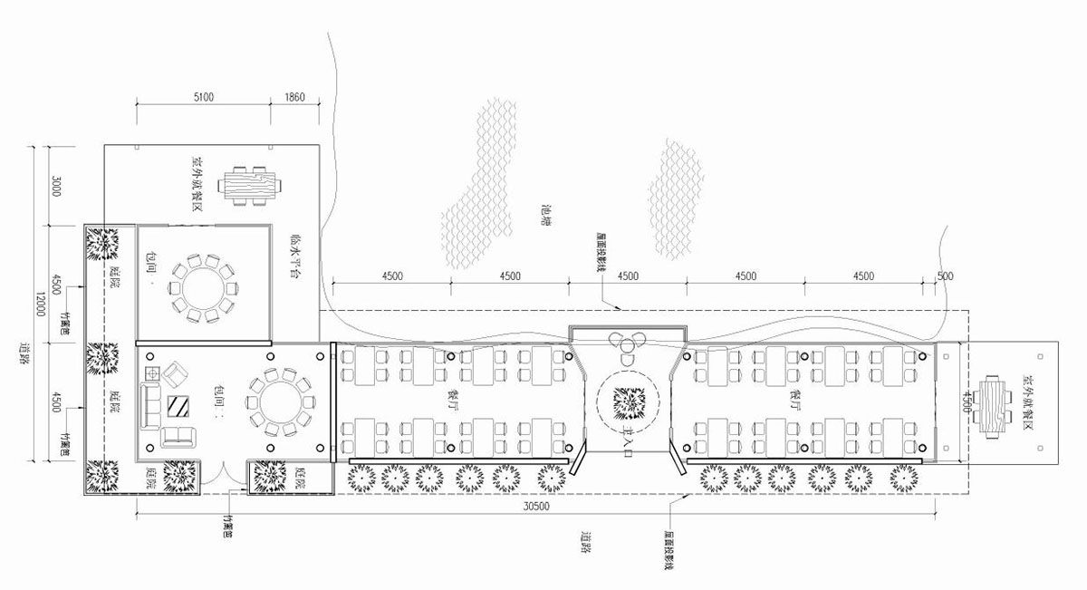
Open space——Casual restaurant
Leisure restaurant
Color flat elevation
Related case